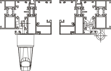
内平开窗五金系统



●配置说明:
1.窗户的框与扇的组角连接必须牢固可靠。
2.本配置适用于标准欧式20槽口。
3.内开组件必须配合欧槽限位撑使用,以达到更好的效果。
4.请正确选用口型合理,材料优质的密封胶条,它是令五金组件耐久使用的重要条件。
●系统配件应用说明

注:传动杆的尺寸公式基于窗扇的搭接边尺寸为22mm计算的,不同厂家的窗扇型材搭接边的尺寸不尽相同,请仔细测量。
●标准配置


Dedicated To Creation And Research. Specialty Embodies Value
创研精密 · 赋能门窗价值
