拨钉式外平开窗五金系统



●配置说明:
1.本配置的配件均为可选择性配件,根据型材实配。
2. 本配置执手和连杆有多种可供客户选择,详见后面执手和连杆系列。
3.连杆的长度和连杆上锁点的数量根据窗型的大小而定。(当连杆长度大于1000MM时建议使用3个锁点)
4.选用不同滑撑承重不一样,具体参数见后面滑撑系列。
5.在外开窗中必须选用爬升块。
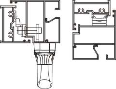
●系统配件应用说明

注:传动杆的尺寸公式基于窗扇的搭接边尺寸为22mm计算的,不同厂家的窗扇型材搭接边的尺寸不尽相同,请仔细测量。
●标准配置


Dedicated To Creation And Research. Specialty Embodies Value
创研精密 · 赋能门窗价值
